Hot-DIP Galvanized C Steel Installation Bracket Solar Ground Mounting System

Still deciding? Get samples of $ !
Request Sample

Product Description

Overview
Model NO.
concrete
Certification
ISO, CE
Application
Commercial
Material
Steel
Type
Ground Bracket
Lead Time
5-15days
Transport
Sea / Air / CIF / Fob
MOQ
1 Cbm
Corrosion Grade
IP65 / Outdoor Corrosion Resistant
Production
1gw/Years
Product Description
Multiple foundation options are available for different land types. Our specialised technicians provide solutions for ordinary ground supports, garages, sheds, adjustable tripods, and other ground-based setups. Materials include high-quality aluminium alloy and hot-dip galvanised steel to suit your specific project requirements.
Solar Ground Mounting System

Foundation Options:

  • Pile Driven / Ground Screw: Robust structure utilizing ground screws, cost-competitive and environmentally friendly. Ideal for harsh conditions like heavy snow or high wind.
  • Concrete Base: Best suited where ground excavation is restricted. Sizes are adjusted based on static requirements. Also suitable for cement flat roofs.
Technical Specifications
MaterialAnodized AL6005-T5, HDG steel Q235B, SUS304
FoundationGround Screw and Concrete Base
Warranty10 years warranty and 25 years service life
StandardAS/NZS1170, JIS C8955:2017, GB50009-2012, DIN 1055, IBC 2006
Max Wind LoadUp to 60m/s
Snow LoadUp to 1.4KN/M²
Applicable ModuleFramed Or Frameless
Module OrientationPortrait or Landscape
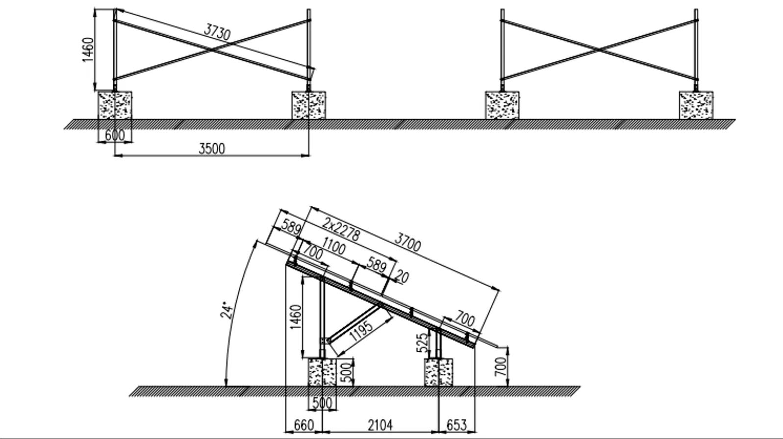
Technical Drawing
📋 Necessary Information for Quotes:

1. Solar panel dimensions (L/W/T) and Power (W).
2. Panel array configuration (rows x columns).
3. Local Wind Load (m/s) and Snow Load (cm).
4. Installation angle and orientation (Portrait/Landscape).
5. Site environment (Salinity control requirements).
6. Preferred foundation type (Concrete or Ground Screws).

Application Showcase
Installation 1
Installation 2
Installation 3
Professional Solution Provider
Factory Overview
Located in a developed coastal manufacturing hub, we operate an independent factory capable of specialized customization. Our proximity to major shipping ports ensures convenient global logistics.
Product Advantage 1
Product Advantage 2
  • Lightweight design for easy transportation and safe construction.
  • High corrosion resistance and excellent salt tolerance.
  • Maximum pre-assembly to save significant construction time and labor costs.
  • Environmentally friendly, durable, and fully recyclable materials.
  • Versatile solutions to meet diverse geological and customer requirements.
Frequently Asked Questions
Are you a professional photovoltaic system manufacturer?
Yes, we have a dedicated R&D team offering free system design and services. With our own factory and over 10 years of production experience, we ensure high-quality standards.
Do you support OEM and ODM services?
Yes, we supply both OEM and ODM services. We have a long history of designing for top global EPC distributors.
What is the typical delivery time?
Standard orders take 5-15 days. For customized products, the lead time is approximately 20 days.
Can you provide samples for testing?
Yes, we provide free samples for your testing and evaluation.
What is the warranty period for your mounting systems?
We offer a 10-year warranty and a designed service life of 25 years.
How are the goods shipped and how long does it take?
Samples are usually shipped via DHL or FedEx (3-5 days). Large orders are shipped by sea, taking between 7 to 30 days depending on the destination.

Related Products